首页 > 产品大全 > 冲模装配图下载指南 深入解析机械CAD图纸在设备制造与设计中的关键作用

冲模装配图下载指南 深入解析机械CAD图纸在设备制造与设计中的关键作用

冲模装配图下载指南 深入解析机械CAD图纸在设备制造与设计中的关键作用

在机械设备制造、装配与设计的专业领域中,冲模装配图作为核心的技术文件,其重要性不言而喻。一份典型的DWG格式冲模装配图,如标题中提及的106.20KB文件,不仅是生产制造的蓝图,更是设计思想与工艺要求的精确载体。本文将系统阐述这类图纸的价值、应用场景以及如何有效地获取与利用它们。

一、冲模装配图:机械设备制造的“语言”

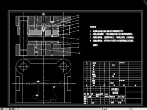
冲模是用于冲压成型工艺的关键工装,其结构复杂、精度要求极高。装配图则全面展示了模具所有零件的空间关系、装配顺序、关键尺寸及技术要求。DWG格式作为计算机辅助设计(CAD)领域的通用标准,确保了图纸信息的准确、规范与可编辑性。这106.20KB的文件虽小,却可能包含了从模架、凸凹模到导向装置、卸料机构等所有细节的数字化定义,是连接设计与制造的桥梁。

二、核心应用场景解析

  1. 制造与加工:车间工人依据装配图进行零件的精密加工和外协采购,确保所有组件符合设计规格。
  2. 装配与调试:装配工程师按照图纸指引,完成模具的组装、间隙调整和功能测试,保障最终产品的质量。
  3. 设计与优化:设计师可通过分析现有成功案例的装配图(如下载的参考图纸),学习成熟结构,进行改进创新或逆向开发。
  4. 维修与维护:当模具出现磨损或故障时,装配图是进行诊断、零件更换和修复的不可或缺的依据。
  5. 技术交流与存档:标准化的图纸便于团队内部及与供应商、客户之间的技术沟通,同时也是重要的技术档案。

三、如何有效获取与利用此类图纸资源

对于“冲模装配图下载”的需求,通常源于学习、参考或具体项目应用。

1. 获取渠道:
专业图纸平台与论坛:许多专注于机械、模具的网站或社区提供大量免费或付费的CAD图纸资源库,支持按格式(如DWG)、行业和关键词进行搜索。
行业数据库与标准库:一些行业协会或商业机构会提供标准件库或典型结构图库。
教育机构资源:高校或职业培训学校的相关课程有时会公开教学用图纸案例。
注意版权与用途:下载时务必关注图纸的授权协议,尊重原创设计,用于商业目的需格外谨慎。

2. 使用与学习建议:
必备工具:需安装AutoCAD、中望CAD或其他兼容DWG格式的软件才能正确打开和查看图纸细节。
看图方法:从标题栏、明细栏(BOM)了解总体信息,再结合多个视图(主视、俯视、剖视)建立三维空间想象,理解装配关系和运动原理。
深入学习:不应仅停留在“下载”和“观看”,而应尝试测量尺寸、分析公差配合、研究材料和技术要求,甚至尝试在CAD软件中进行拆解和模拟装配,以真正掌握其设计精髓。
安全防护:下载不明来源的图纸文件前,应进行病毒扫描,确保计算机系统安全。

###

一张106.20KB的DWG格式冲模装配图,是机械知识与工程智慧的浓缩。它不仅是实现从图纸到产品转化的起点,更是工程师和技术人员学习和成长的宝贵资源。在“中国制造”向“中国智造”转型升级的今天,熟练掌握CAD技术,深刻理解包括冲模在内的各类装配图,对于提升个人技能与企业核心竞争力都具有重要意义。因此,理性、合法地获取并深入研究这些图纸,将其转化为实际的设计与制造能力,才是对待这类技术资源的正确态度。

如若转载,请注明出处:http://www.sl-bend.com/product/30.html

更新时间:2026-05-30 01:01:35